Устройства для очистки воздуха от Falmec представляют собой удачное сочетание стильного дизайна, инновационных технологий и удобства в использовании. Производители позаботились и о том, чтобы установка этих приборов не требовала особых усилий. Каждая модель снабжена подробной инструкцией, где описывается, как установить вытяжку Falmec. Согласно стандартам, расстояние от варочной панели до нижней точки вытяжки должно быть не менее 65 см. Для электрического подключения используется отдельная розетка с заземлением. Если модель не комплектуется вилкой, необходимо подключить провода в соответствии с приложенной схемой.

Монтаж настенных модели из серий HORIZON, LUMINA, PLANE, VELA и других производится в несколько этапов. На стене после разметки устанавливается крепежная рейка, на которую монтируется корпус вытяжки. Затем он выравнивается при помощи винтов на держателях.
Если предстоит работа вытяжки в режиме отвода, следует подсоединить выходной патрубок вентилятора к внешнему выводу, стараясь не допускать более 2 изгибов. После этого нужно выполнить электрическое подключение — оно выполняется при отключенном электропитании. На заключительном этапе труба воздуховода закрывается декоративным дымоходом и удлинителем, которые также крепятся к стене. Некоторые модели не комплектуются крепежной планкой — в этом случае отверстия высверливаются в стене.

Аналогично осуществляется и установка наклонных вытяжек — например, моделей из серии FLIPPER. На стене размечаются места для установки крепежной рейки, высверливаются отверстия, и планка закрепляется при помощи винтов. На рейку навешивается корпус вытяжки, после чего открывается передняя стеклянная панель и извлекается металлический фильтр. Вытяжка выравнивается и дополнительно закрепляется, чтобы избежать отцепления из-за нажатия снизу. Затем производится присоединение к вентиляции — для этого выходной патрубок вентилятора соединяется со внешним выводом при помощи воздуховода. В зависимости от модели после этого может устанавливаться декоративный дымоход. Затем возвращаются на свое место фильтры и передняя стеклянная панель и подается электропитание.

Монтаж островных моделей с креплением к потолку должен осуществляться силами не менее двух человек. Перед установкой прибора необходимо снять переднюю панель и извлечь фильтры, чтобы избежать их поломки. У некоторых моделей можно также изменить при установке положение двигателя — для этого снимаются удерживающие винты, и камера двигателя аккуратно переносится из бокового положения в заднее. Затем к потолку при помощи высверленных отверстий крепится решетчатая опора и в вентиляцию вставляется воздухоотводная труба. После тщательной фиксации трубы в вертикальном положении регулируется ее высота — при необходимости лишнее можно отрезать, — и свободный конец трубы закрепляется в вытяжке. Затем происходит навеска декоративного дымохода согласно инструкции, и модель подключается к электропитанию.

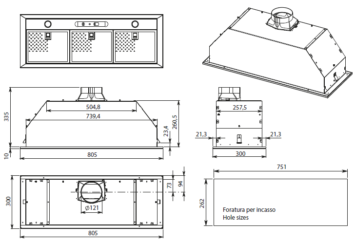
Встраиваемые модели могут крепиться к навесному шкафу или коробу. Перед их установкой необходимо проверить, соответствуют ли размеры шкафа и прибора, и достаточна ли высота размещения над варочной поверхностью. Если в шкафчике отсутствует отверстие для установки, его предстоит выпилить — схема с размерами приведена в инструкции. В шкафчике размещается корпус устройства, воздуховод и переходники: все детали закрепляются с помощью крепежа, который тоже входит в комплект. Если модель оснащена выдвижной панелью, необходимо убедиться, что она свободно выдвигается вперед. После этого производится установка обратного клапана, присоединение вытяжной трубы и подключение к электрической сети. После этого устанавливается угольный фильтр.

Купольные модели — массивные устройства, которые требуют значительных усилий при установке. Сам процесс работы мало отличается от монтажа других настенных моделей. Для облегчения монтажа рекомендуется предварительно отсоединить от дна вытяжки моторный блок. После этого в стене размечаются и высверливаются отверстия, а затем производится крепление вытяжки на стену. Потом труба воздуховода крепится к круглому патрубку камеры двигателя, после чего двигатель возвращается на место и закрепляется при помощи винтов.
Если установка вытяжки своими руками вызывает затруднения, следует обратиться к специалистам из сервисных центров Фалмек.